Vente Appartement 6 pièces 269 m2 à Roubaix

329 800 €

Détails de l'annonce

Référence 85034264 - Mise à jour le 24/01/2026

LOFT 269 m² de 6 PIECES 5 chambres terrasse 60 m²
Visite 7/7 Agence ouverte 7/7

loft à Roubaix :

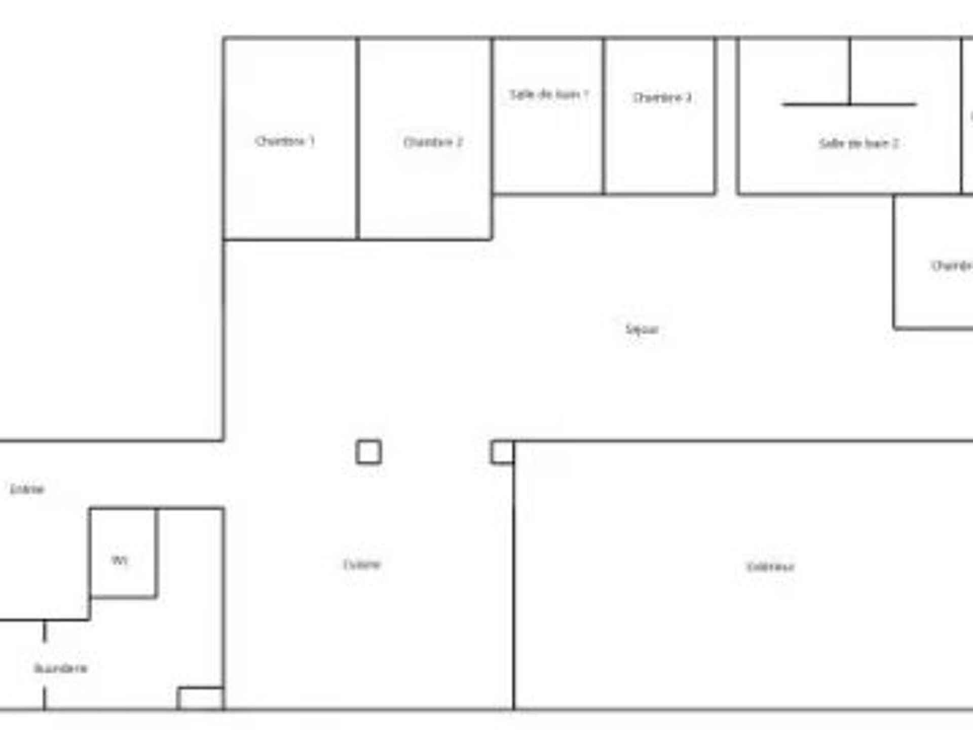
Situé dans un environnement calme et proche des commodités, ce charmant loft lumineux de 6 pièces, d’une superficie totale de 269,87 m² (223,40 m² en loi Carrez + 51 m² de mezzanine), se trouve dans un excellent état. Le bien offre un hall d’entrée avec penderie, un WC séparé, une buanderie, ainsi qu’une vaste pièce de vie de 123,73 m² avec une grande cuisine dinatoire aménagée et équipée. L’ensemble est idéalement exposé Sud-Est et s’ouvre sur une large terrasse de 60 m² sans vis-à-vis.

Le loft comprend également 4 chambres, toutes bénéficiant de puits de lumière, ainsi qu’une chambre mezzanine et un espace bureau ou salle de jeux de 51 m². La chambre parentale dispose d’une grande salle de douches italienne avec double vasque attenante, en plus de la salle de bains.

Le loft bénéficie d’une hauteur sous plafond impressionnante de 6 mètres, de double vitrage, d’un poêle à bois et de 7 VMC pour un confort optimal. Il dispose également d’un grand garage pour deux voitures.

Les charges de copropriété sont très faibles (67 € par mois), avec une taxe foncière de 2291 € et des consommations annuelles de gaz et EDF estimées à 2000 €. Ce bien fait partie d’une petite copropriété de seulement 6 lots.

Ce loft allie espace, luminosité et confort dans un secteur recherché, à découvrir sans tarder.

Agence ouverte 7/7. Un réseau National "Expert Immobilier" de 400 Agences. Agence multi-services : ( Expertise Agréée, Achat, Vente, Location, financement, Déménagement, Assurances, Gestion locative )

Caractéristiques de ce bien

  • Etat général
    Excellent
  • Année de construction
    1940
  • Surface habitable
    269 m²
  • Nombre d'étages
    1
  • Nombre de pièces
    6
  • Terrasse
    Oui
  • Chauffage
    individuel gaz central
  • Cheminée
    Oui
  • Double vitrage
    Oui
  • Tout-à-l'égout
    Oui
  • Vidéophone
    Oui
  • Altitude
    25
  • Date de réalisation du DPE
    2024-06-05
  • Référence
    85034264

À propos du prix

Acheter ce bien avec Arthurimmo.com Financement
329 800 €

Bilan énergétique

Géorisques

Les informations sur les risques auxquels ce bien est exposé sont disponibles sur le site Géorisques : www.georisques.gouv.fr

Ce bien vous est proposé par

Sebastien DELAPLACE
Gérant
Sebastien DELAPLACE
196 rue Jean Jaurès
59650 Villeneuve-d'Ascq
Ajouter un commentaire (facultatif)

Soyez le premier informé !

Recevez en temps réel les annonces correspondant à votre recherche.